啟德海灣1戶型價格:啟德新盤總共1017伙・多元選擇

啟德樓價487萬起・實用236-3936呎・開放式至四房・2025年6月入伙

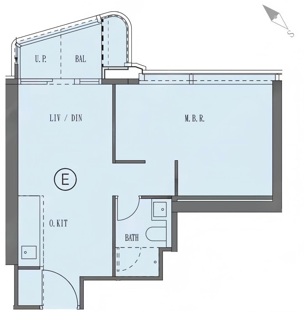
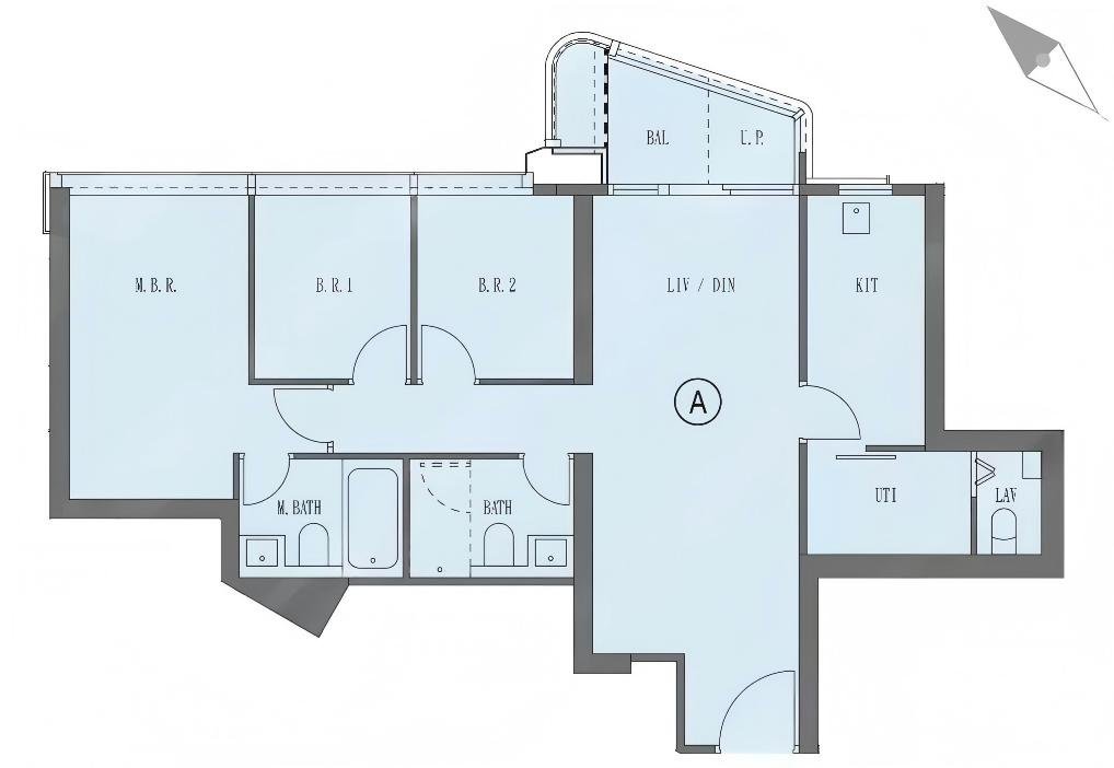
啟德新盤戶型規劃

啟德新盤啟德海灣 1 KT Marina 1 總共1017個單位,實用面積236-3936平方英尺,提供開放式至四房及特色戶選擇。啟德樓盤空間設計多數戶型無走廊浪費,房間歸邊提升私密性,部分戶型帶私人天際露台、儲物室,實用性強。

啟德新盤項目共5座高層住宅,覆蓋開放式(236-248呎)、一房(269-771呎)、兩房(392-475呎)、三房(562-713呎)、四房(873-2230呎)及特色戶/頂層復式(3936呎),啟德樓價487萬起,預計2025年6月30日入伙。

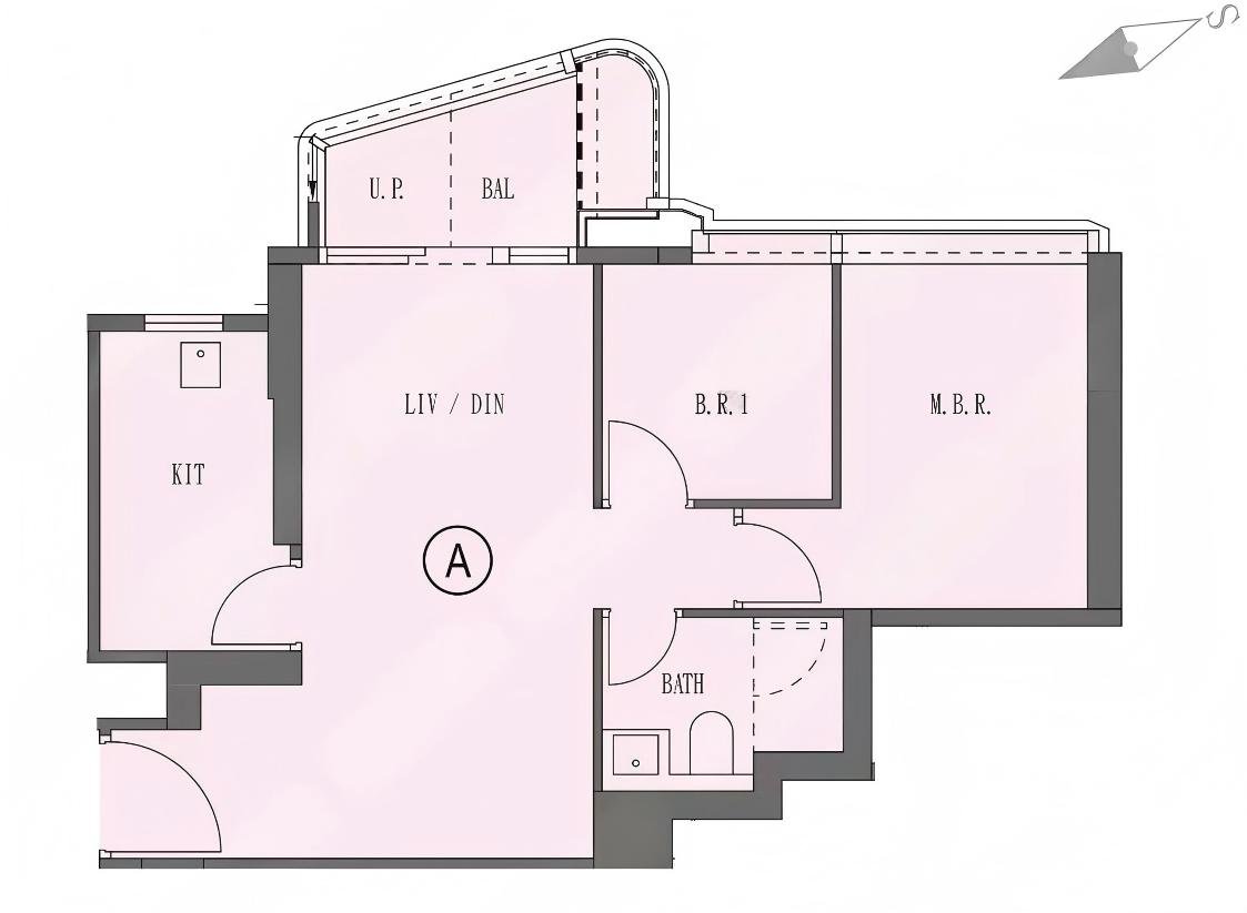
啟德海灣 1 KT Marina 1 一房戶型 - 269-771呎,653萬起

一房戶型

面積:269-771平方呎 房間:1房1廳
售價:653萬起 HKD
啟德海灣 1 KT Marina 1 兩房戶型 - 392-475呎,1125萬起

兩房戶型

面積:392-475平方呎 房間:2房1廳
售價:1125萬起 HKD
啟德海灣 1 KT Marina 1 三房戶型 - 562-713呎,1851萬起

三房戶型

面積:562-713平方呎 房間:3房2廳
售價:1851萬起 HKD
戶型 實用面積 價格範圍 戶型特色
開放式 236-248 呎 487萬起 LDK一體化設計,無走廊浪費
一房 269-771 呎 653萬起 房間歸邊,部分帶私人露台
兩房 392-475 呎 1125萬起 實用率高,部分帶儲物室
三房 562-713 呎 1851萬起 空間寬敞,適合家庭居住
四房 873-2230 呎 9320萬起 頂級戶型,部分帶私人天際露台
特色戶/頂層復式 3936 呎 9320萬起 頂級奢華,全景維港海景